高壓雙PLC交流控制電控
發布時間:2018-01-24來源:提升機電控點擊:10631

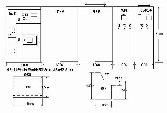
一、高壓串電阻系統的組成
序號 | 名 稱 | 型 號 | 數 量 | 說 明 |
1 | 高壓真空開關柜 | 6/10KV | 1臺 | 高壓真空斷路器 |
2 | 高壓真空換向柜 | 6/10KV | 1臺 | 高壓真空接觸器 |
3 | 輔助電源柜 | ZF | 1臺 | |
4 | 動力柜 | DLG | 1臺 | |
5 | 轉子控制柜 | ZKZK | 1臺 | 真空接觸器或可控硅 |
6 | 三體操作臺 | TCZ | 1套 | 雙PLC通訊 |
7 | 軸編碼器 | E6B2-CWZ6C | 2 套 | 含連軸節 |
8 | 上位監控系統 | SJDK | 1套 | 工控機、19寸液晶顯示器 |
二、技術原理
全數字交流提升機的PLC控制系統。電源經高壓柜、換向柜向交流繞線式電動機供電,控制提升機的正反轉運行。轉子回路采用由晶閘管組成的大功率無觸點開關控制加速電阻的切除。動力制動柜(或低頻制動柜)控制提升機的減速。操作臺內裝有二臺可編程控制器,控制提升機的加速、減速、爬行等工作。這兩臺PLC有主有從,分工協作,相互協調。與上位機和井筒信號系統構成智能網絡控制系統。通過通訊方式完成各個系統之間的信號傳輸。借助于獨特的軟件設計,使提升機各部件組成一個有機的整體,完成提升機的各種工藝要求。
三、外形尺寸

